Letölthető pdf
Hurricane
3,5t 2 lakásos Motorhome
Freightliner
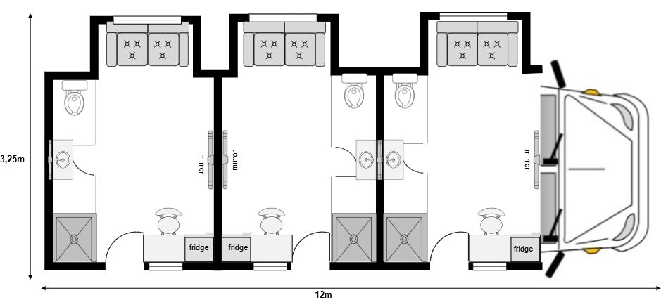
2 lakásos Motorhome 7,5t
3,5t Motorhome (RJP-487)
3,5t Motorhome (RCW-599)
Felhasználónév vagy Email cím *
Jelszó *
Emlékezz rám Belépés
Elfelejtett jelszó?